Beschrijving
Spectaculaire villa in Benissa Costa met indrukwekkende zee en berg uitzichten!
Dit nieuwbouwproject voorziet in 7 unieke percelen waarop 7 unieke villa's gebouwd zullen worden in de urbanisatie Racó de Galeno van Benissa Costa. De percelen zijn rustig gelegen in het groen en beschikken allemaal over adembenemende uitzichten op de Mediterraanse oceaan en het prachtige omliggende berglandschap.
Een team van erkende architecten en binnenhuisarchitecten staan ter uwer beschikking voor het ontwerpen van uw droomvilla!
Exclusiviteit en luxe zijn hier ongetwijfeld troef en het perceel is gelokaliseerd in een exclusieve luxe villa residentie. Deze residentie is voorzien van gepersonaliseerde straatverlichting, geplaveide voetpaden, gastoevoer van de gemeente en muren van natuursteen.
Het perceel geniet van een Zuid-oosterse oriëntatie met magnifieke uitzichten op de zee en de rots Ifach en de skyline van Calpe. Er is ook een video bewakingssysteem voorzien, een bewegingsdetector op de gevel, intercom aan de ingang van het perceel etc.
Architecturale stijl, interieur en exterieur design wordt besproken met de architecten en binnenhuis designers die ter uwer beschikking worden gesteld.
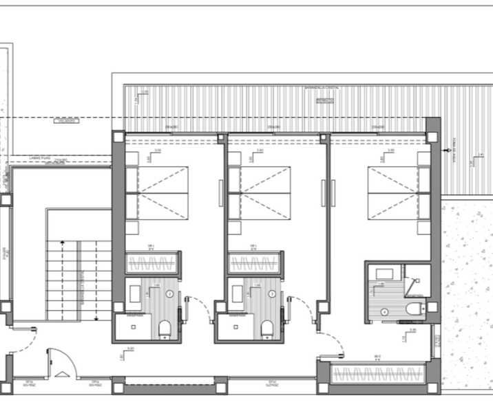
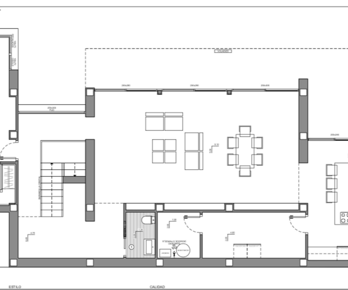
De indrukwekkende villa beschikt over 4 ruime slaapkamers met ingemaakte kasten, 4 badkamers ensuite, een gasten badkamer, een inloop dressing en telkens toegang tot de terrassen of het balkon. Een ruime woonkamer, een open volledig geïnstalleerde keuken met kookeiland, een dubbele garage etc.
Tussen Calpe en Moraira ligt het schilderachtige en authentieke dorp Benissa. Het historische stadscentrum van Benissa, met zijn prachtige kathedraal “La Iglesia de la Purísima Xiqueta” en de vele andere monumenten, ligt op een 10-tal km van de kust. Het gedeelte van Benissa langs de kust, Benissa Costa, beschikt over mooie zandstranden met prachtige baaien zoals La Calalga, Pinamar, Baladrar, La Fustera en Abogat.
Dit nieuwbouwproject voorziet in 7 unieke percelen waarop 7 unieke villa's gebouwd zullen worden in de urbanisatie Racó de Galeno van Benissa Costa. De percelen zijn rustig gelegen in het groen en beschikken allemaal over adembenemende uitzichten op de Mediterraanse oceaan en het prachtige omliggende berglandschap.
Een team van erkende architecten en binnenhuisarchitecten staan ter uwer beschikking voor het ontwerpen van uw droomvilla!
Exclusiviteit en luxe zijn hier ongetwijfeld troef en het perceel is gelokaliseerd in een exclusieve luxe villa residentie. Deze residentie is voorzien van gepersonaliseerde straatverlichting, geplaveide voetpaden, gastoevoer van de gemeente en muren van natuursteen.
Het perceel geniet van een Zuid-oosterse oriëntatie met magnifieke uitzichten op de zee en de rots Ifach en de skyline van Calpe. Er is ook een video bewakingssysteem voorzien, een bewegingsdetector op de gevel, intercom aan de ingang van het perceel etc.
Architecturale stijl, interieur en exterieur design wordt besproken met de architecten en binnenhuis designers die ter uwer beschikking worden gesteld.
De indrukwekkende villa beschikt over 4 ruime slaapkamers met ingemaakte kasten, 4 badkamers ensuite, een gasten badkamer, een inloop dressing en telkens toegang tot de terrassen of het balkon. Een ruime woonkamer, een open volledig geïnstalleerde keuken met kookeiland, een dubbele garage etc.
Tussen Calpe en Moraira ligt het schilderachtige en authentieke dorp Benissa. Het historische stadscentrum van Benissa, met zijn prachtige kathedraal “La Iglesia de la Purísima Xiqueta” en de vele andere monumenten, ligt op een 10-tal km van de kust. Het gedeelte van Benissa langs de kust, Benissa Costa, beschikt over mooie zandstranden met prachtige baaien zoals La Calalga, Pinamar, Baladrar, La Fustera en Abogat.
4
5
265 m²
1.400 m²